010 - 88125588

防火门监控系统

首页 / 防火门监控系统

联系方式 / Contact

北京航天常兴科技发展股份有限公司

地址:北京市大兴区金星路 30 号

邮编:102600

邮箱:htcx@htcxcloud.com

电话:010-88125588

           010-88121515

           010-69297973

传真:010-88125588​ 转 833

电气安全服务专线:400-968-0119

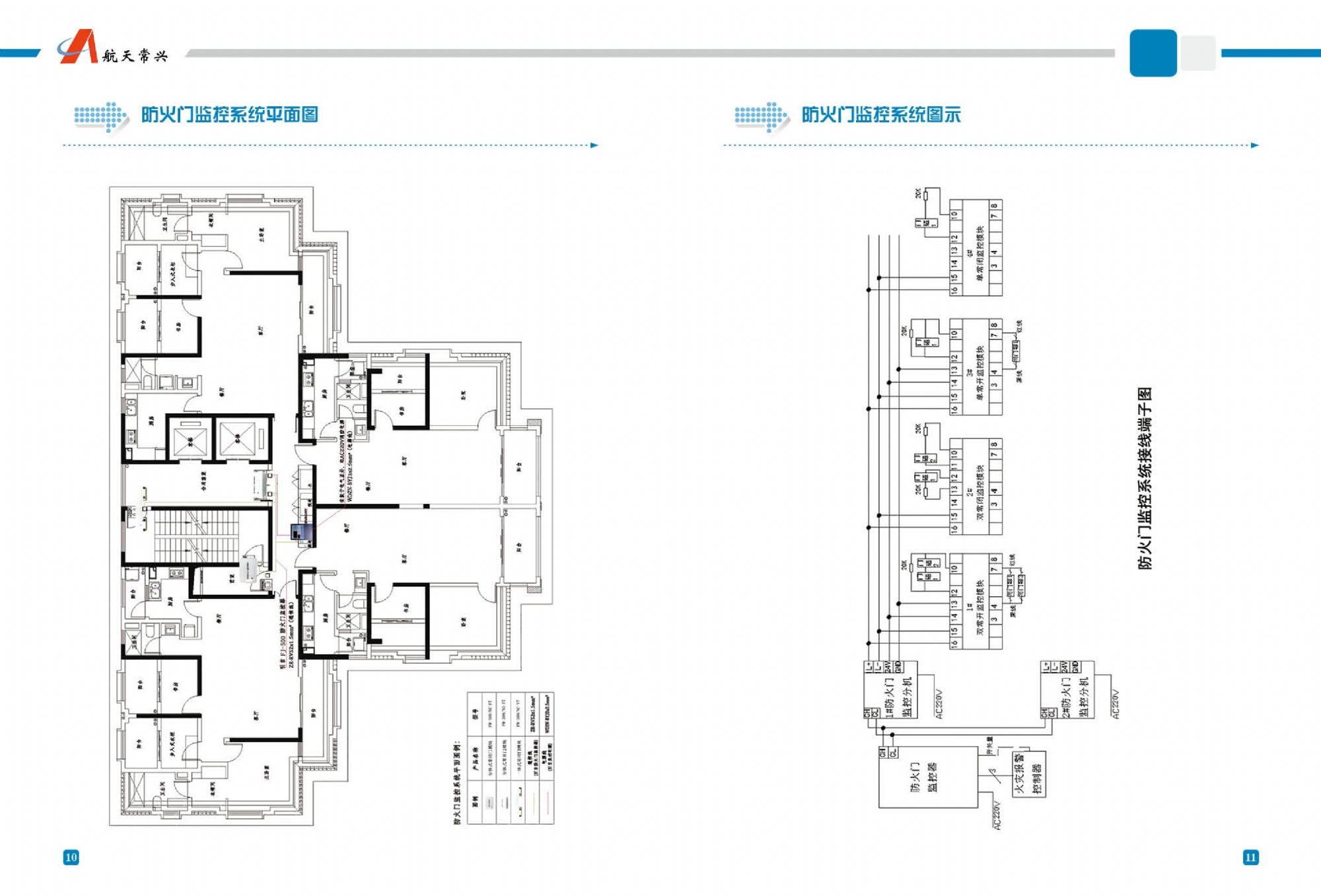
(分布式)防火门监控系统 /(分布式)防火门终端控制产品 ● 设计选型指南

来源:本站 时间:2024/3/12 602




微信 微信
抖音 抖音
 
Copyright © 2001-2026 北京航天常兴科技发展股份有限公司 All Right Reserved. www.htcxcloud.com
电气火灾监控系统 | 智能疏散指示系统 | 漏电探测器 | 剩余电流探测器 | e火控系列 | DT-200 T201LW T204L T204W J80 | 航天常兴  网站地图
建议使用Chrome、Firefox、Edge、IE10及以上版本和360等主流浏览器浏览本网站